王博——神舟明珠151㎡简欧风格◤典雅精致 温馨舒适◢

[复制链接]
三十而立 发表于 2017-7-21 11:03:41 | 显示全部楼层 |阅读模式
施工地址】:神舟明珠

【户型】:四室两厅两卫

【面积】:151㎡

【风格】:简欧

【设计】:王博大宅

【负责人】:刘银鹏

【开工日期】:2017年7月20日

【施工】:王博大宅装饰设计

【承包方式】:基础装修
(前期规划设计、墙体改造、水电改造、防水、铺砖、木工吊顶造型、墙顶面基层处理、顶面乳胶漆、窗台大理石、辅助成品安装、开关面板牛眼灯灯带安装)


午后的阳光慵懒温柔
沿着优雅的弧线缓缓流淌
爱它唱出的每一个音符
爱它缱绻的馥郁
爱上午后的阳光
沉醉在如水的音乐里
很多人一提到欧式装修
想到的就是繁复的装饰元素
光亮、镀金的材质和堆砌的陈设品
组成土豪般的既视感
但是这不是它的全部
它也有雅致温馨的一面






▲效果图▲

说起欧式风格的设计,大家印象中肯定是品质高端、格调优雅、华美闪亮的格局。客厅装修往往将视觉聚焦在电视墙的设计,石材、墙纸、镜面、手绘等设计更是层出不穷。而大理石、瓷砖往往是最有气质的,说了你还别不服,看完下面这组图。

本案以优雅的欧式风格定位,主色调采用咖色系,空间点缀柠檬黄、孔雀蓝众多颜色和谐相处,整个空间弥漫着典雅与温馨的格调。
KV%3MDW8KUQB2%GDPNB%VIJ.png


在欧式中融入现代元素,使得空间显得内敛华丽,拥有独特气质外空间之间又通过色彩形成关联。全屋彰显出精致的典雅。
5DLP_]QGPP7PW11Y2XYS)9S.png


客厅的布局和结构讲究轴线的对称,注重整体的规整,强调了室内的简约和功能性。整体色调以米黄配灰白,金属材质的小面积点缀,增添空间的华贵质感。
F]MB@JZ9B8ZI(Z`@P@U3GSS.png


餐厅是客厅的延续,整体保持一致,灰色高质感的餐桌在水晶吊灯的印衬下更显高贵典雅。
U9G@TR59V8158J(449PCWR4.png


居室环境的营造彰显出屋主对生活品质的要求,整体设计风格以简欧风为主,设计师通过对空间格局的演绎,尽展空间设计美学。色彩上以米白为主,营造出华丽优雅的情调。简约的设计手法和雅致的空间演绎,使空间既保留古欧式的典雅又兼具现代生活的休闲与舒适。



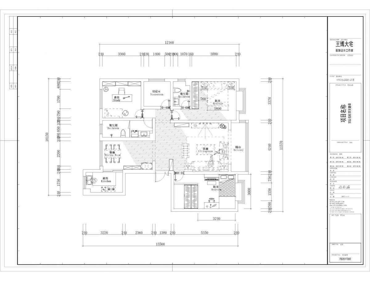
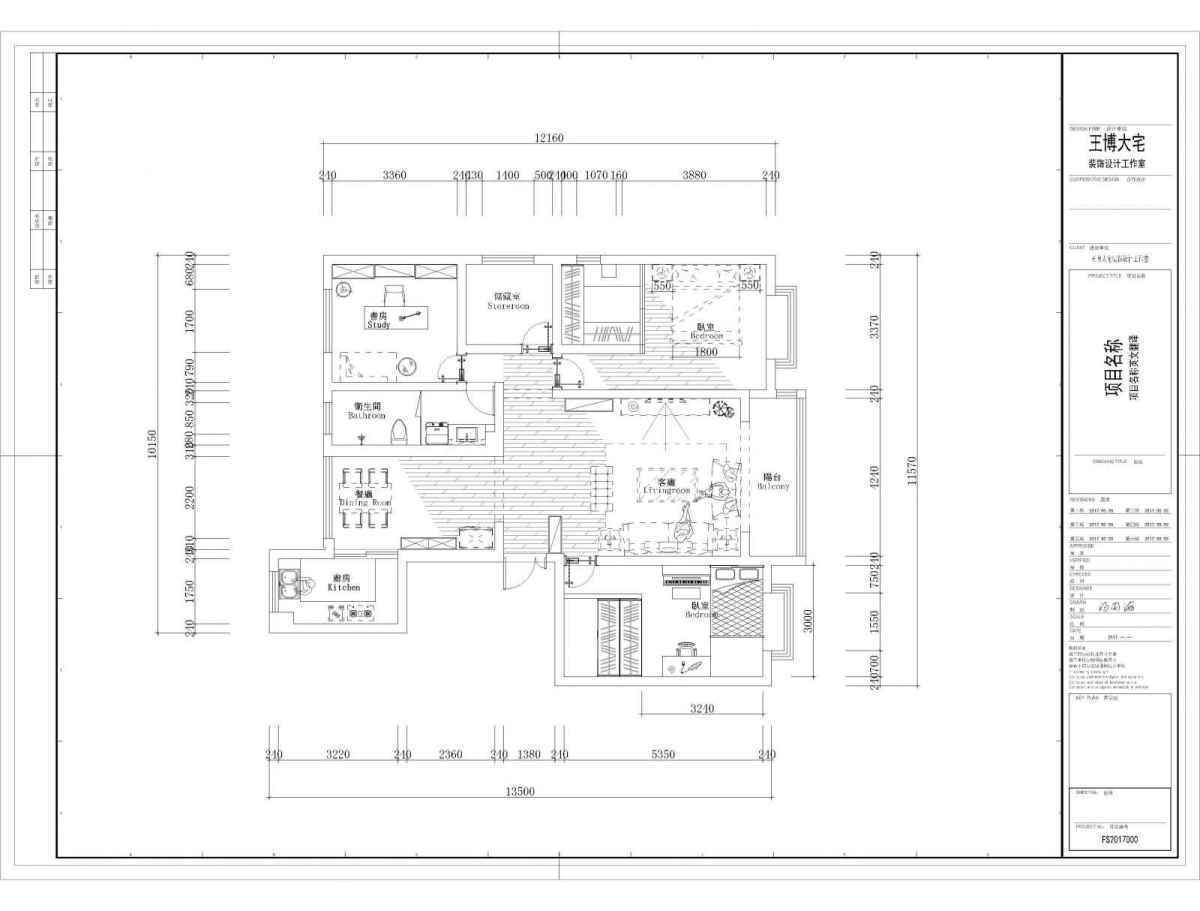
看完效果图,我们来研究一下房子的户型结构。

▲原始结构图▲
我的图框-Model.jpg
神州明珠151㎡ 的三居室,外加一个储藏室,户型方正合理,四面通风,光线充足,走廊纵深非常的华丽大气。各个功能区空间宽阔。
        从去年八月份接触第一个客户开始,量完尺寸就没有停止过对户型的研究,电视墙的位置放哪合适?冰箱放哪?洗衣机可以放阳台吗?都是客户最常问的问题,根据以上问题我们做了下图三种布局方案以供客户参考,以上问题也会做出详细解答。
▲平面布局图▲


平面布局方案一:
        保留了户型的基本布局,两个卫生间,一个主卫一个次卫,使用方便。
我的图框方案一.jpg


平面布局方案二:
         对于三口之家或是两口之家,一个卫生间足够了,主卧卫生间做成了衣帽间,增加储物功能。
我的图框方案三.jpg


平面布局方案三:
        较前两种方案,第三种方案避免了储物间门直对着入户门同时提高了主卧的舒适度,衣帽间和卫生间串通起来,使用更加的方便,当然这个方案局限性也特别大。
神舟明珠151㎡方案2-Model.jpg


根据业主常问的问题做出如下解答:

        一、电视墙做到主卧那堵墙更加合理,开门看到电视墙比较美观,私密性也比较好,次卧那堵墙长3.8米做沙发墙尺寸足够,如果选择次卧那堵墙做电视墙也可以,需要在处理电视墙的时候做一个对称的造型,把次卧的门做成隐形门。
        二、冰箱可以放在餐厅,用可以活动的材质把分水器包起来,冰箱放在分水器前面,利于冰箱散热,剩余的墙面可以做成酒柜,下附局部布局图
餐厅放冰箱图解.png


冰箱也可以放厨房,需要把厨房那堵墙延伸出来,延伸出来的尺寸正好可以把酒柜嵌进去,更加美观,下附局部布局图。
厨房放冰箱图解.png



三、洗衣机可以放阳台,在改水电的过程中,提前预留好洗衣机的下水管,而现在人们都用滚筒洗衣机,滚筒洗衣机排水都是强排有压力的,所以排水不成问题,下附搜集的阳台放洗衣机的图片。
IMG_8490.JPG


▲施工中▲

▲开工
微信图片_20170721103955.jpg

微信图片_20170721104008.jpg



下附本案设计师名片
QQ图片20170625114608.jpg

此帖会根据进度陆续更新。。。。

谢谢大家耐心的看完帖子,如有疑问或想法请不吝赐教

     24小时咨询电话:18298969418        13519377120      
                           qq:644398178           424080941
                        微信:18298969418      424080941
                        微博:王博_大宅装饰设计


提供海量装修美图及装修达人在线咨询,欢迎关注。




640.webp.jpg


IMG_8539.JPG













 楼主| 三十而立 发表于 2017-7-30 09:58:59 手机APP | 显示全部楼层
水电改造
FFMkMjol7257.jpg
59lzh4KTmI5h.jpg
49d5ZTO7mJKl.jpg
回复 支持 反对

使用道具 举报

您需要登录后才可以回帖 登录 | 注册

本版积分规则

手机版|

酒泉在线,关注身边事。

陇ICP备15000578号|甘公网安备62090202000001号

GMT+8, 2026-2-20 15:23

快速回复 返回顶部 返回列表