王博——神舟明珠151㎡现代简约◤简约大气 优雅自成◢

[复制链接]
三十而立 发表于 2017-8-13 11:42:13 | 显示全部楼层 |阅读模式
【施工地址】:神舟明珠

【户型】:四室两厅两卫

【面积】:151㎡

【风格】:现代简约

【设计】:王博大宅

【负责人】:刘银鹏

【开工日期】:2017年8月10日

【承包方式】:基础装修(前期规划设计、墙体改造、水电改造、防水、铺砖、木工吊顶造型、墙面基层处理、墙面乳胶漆、窗台大理石、辅助成品安装、开关面板牛眼灯灯带安装)


现代风格并不是只有一种色系

而是多种色颜色组合而成一种画面

住宅最重要的是呈现和容纳主人的记忆和时间

储藏你的个人气息

而非漂亮东西的堆积

外面工作再难受

家里永远都是你的避风港

累了不妨回家睡一睡歇一歇



▲效果图▲

▲本案设计为现代简约风格,从点滴的细节入手,雕琢着简洁而时尚;色彩上,运用白色、灰色、金色相互点缀,来彰显空间的现代气息和时尚带来的质感;材质上,用石材、金属、玻璃等不同的材料以变幻的形式进行组合,让空间个性而鲜明、简洁中绽放着高贵与优雅。 IMG_8930.JPG


虽然线条简单,但是整体空间将现代时髦的家具以巧妙地方式进行陈设,讲求色彩关系,注重大小色块间的组合,个性的配饰融入设计风格之中,表现出自然轻松的情趣化的生活。
IMG_8928.JPG


空间貌似不经意的搭配,却以现代设计将不同的色彩、家具和摆饰连贯起来,一切浑然天成又中性大气,每一个空间都有自己的视觉焦点。
IMG_8929.JPG


咖色的空间里有雅和,黑色餐桌简洁的设计和白色卡座的现代庄重在黑色吊灯的奢华中,裹挟着现代与工业双重艺术,与深色窗帘构成优雅,给予生活平静温和。
IMG_8927.JPG




空间设计没有不符实际的设计,而是针对每个空间的功能特性进行设计,让空间里的现代元素成为生活品质的点缀;简洁规整的空间结构,在保证实用性的前提下,以特别的色彩,与现代感自然柔和,没有喧嚣与繁冗,一派宁静远;空间的一桌一椅是经过与主人商讨才确定的结果,不凡的品味,通过含蓄方式表达着现代设计的简约与平和,却在点滴之中,让生活愈加舒适、优雅。




看完效果图,我们来研究一下房子的户型结构。

▲原始结构图▲
我的图框-Model.jpg
神州明珠151㎡ 的三居室,外加一个储藏室,户型方正合理,四面通风,光线充足,走廊纵深非常的华丽大气。各个功能区空间宽阔。
        从去年八月份接触第一个客户开始,量完尺寸就没有停止过对户型的研究,电视墙的位置放哪合适?冰箱放哪?洗衣机可以放阳台吗?都是客户最常问的问题,根据以上问题我们做了下图三种布局方案以供客户参考,以上问题也会做出详细解答。
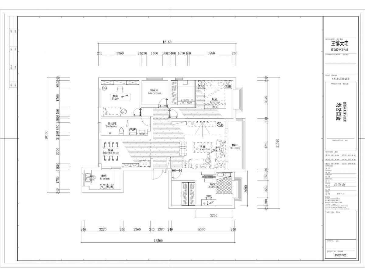
▲平面布局图▲


平面布局方案一:
        保留了户型的基本布局,两个卫生间,一个主卫一个次卫,使用方便。
我的图框方案一.jpg


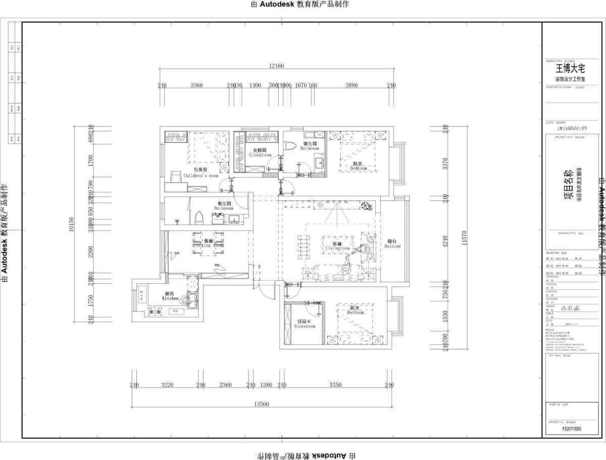
平面布局方案二:
         对于三口之家或是两口之家,一个卫生间足够了,主卧卫生间做成了衣帽间,增加储物功能。
我的图框方案三.jpg


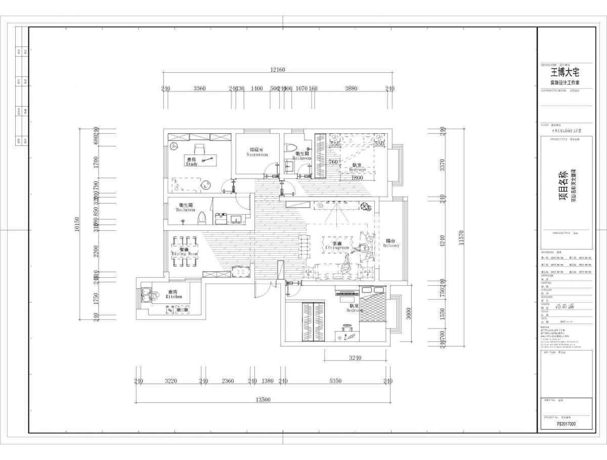
平面布局方案三:
        较前两种方案,第三种方案避免了储物间门直对着入户门同时提高了主卧的舒适度,衣帽间和卫生间串通起来,使用更加的方便,当然这个方案局限性也特别大。
神舟明珠151㎡方案2-Model.jpg




根据业主常问的问题做出如下解答:

        一、电视墙做到主卧那堵墙更加合理,开门看到电视墙比较美观,私密性也比较好,次卧那堵墙长3.8米做沙发墙尺寸足够,如果选择次卧那堵墙做电视墙也可以,需要在处理电视墙的时候做一个对称的造型,把次卧的门做成隐形门。
        二、冰箱可以放在餐厅,用可以活动的材质把分水器包起来,冰箱放在分水器前面,利于冰箱散热,剩余的墙面可以做成酒柜,下附局部布局图
餐厅放冰箱图解.png


冰箱也可以放厨房,需要把厨房那堵墙延伸出来,延伸出来的尺寸正好可以把酒柜嵌进去,更加美观,下附局部布局图。
厨房放冰箱图解.png





三、洗衣机可以放阳台,在改水电的过程中,提前预留好洗衣机的下水管,而现在人们都用滚筒洗衣机,滚筒洗衣机排水都是强排有压力的,所以排水不成问题,下附搜集的阳台放洗衣机的图片。
IMG_8490.JPG


▲施工中▲

▲开工
IMG_8955.JPG

IMG_8956.JPG


下附本案设计师名片

QQ图片20170625114608.jpg




此帖会根据进度陆续更新。。。。

谢谢大家耐心的看完帖子,如有疑问或想法请不吝赐教

     24小时咨询电话:18298969418        13519377120      
                           qq:644398178           424080941
                        微信:18298969418      424080941
                        微博:王博_大宅装饰设计


提供海量装修美图及装修达人在线咨询,欢迎关注。

640.webp.jpg

IMG_8539.JPG









您需要登录后才可以回帖 登录 | 注册

本版积分规则

手机版|

酒泉在线,关注身边事。

陇ICP备15000578号|甘公网安备62090202000001号

GMT+8, 2026-2-20 14:11

快速回复 返回顶部 返回列表