锐达装饰-------138㎡简约风格 简洁大方有品位

[复制链接]
15709344274 发表于 2017-8-21 16:29:09 | 显示全部楼层 |阅读模式
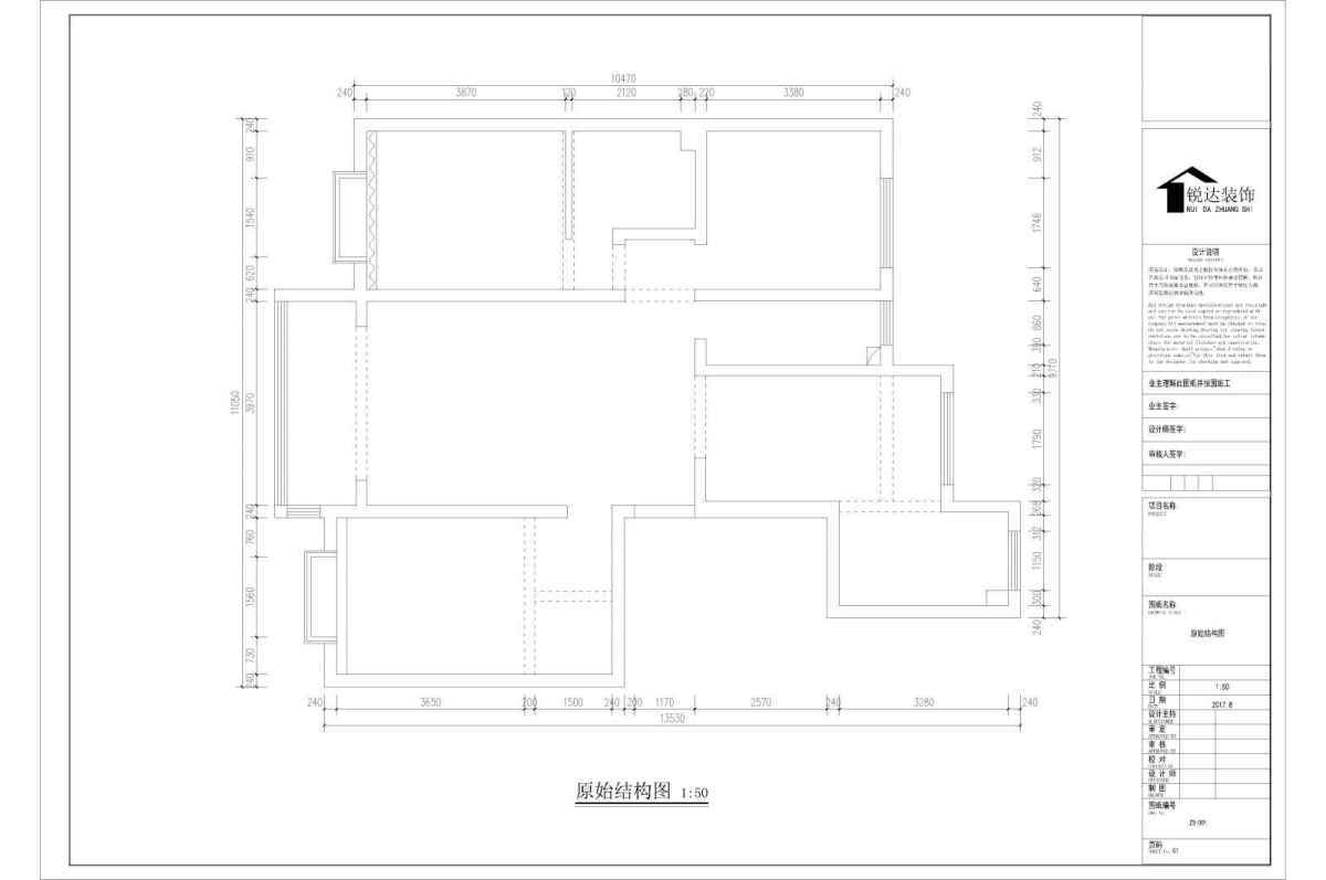
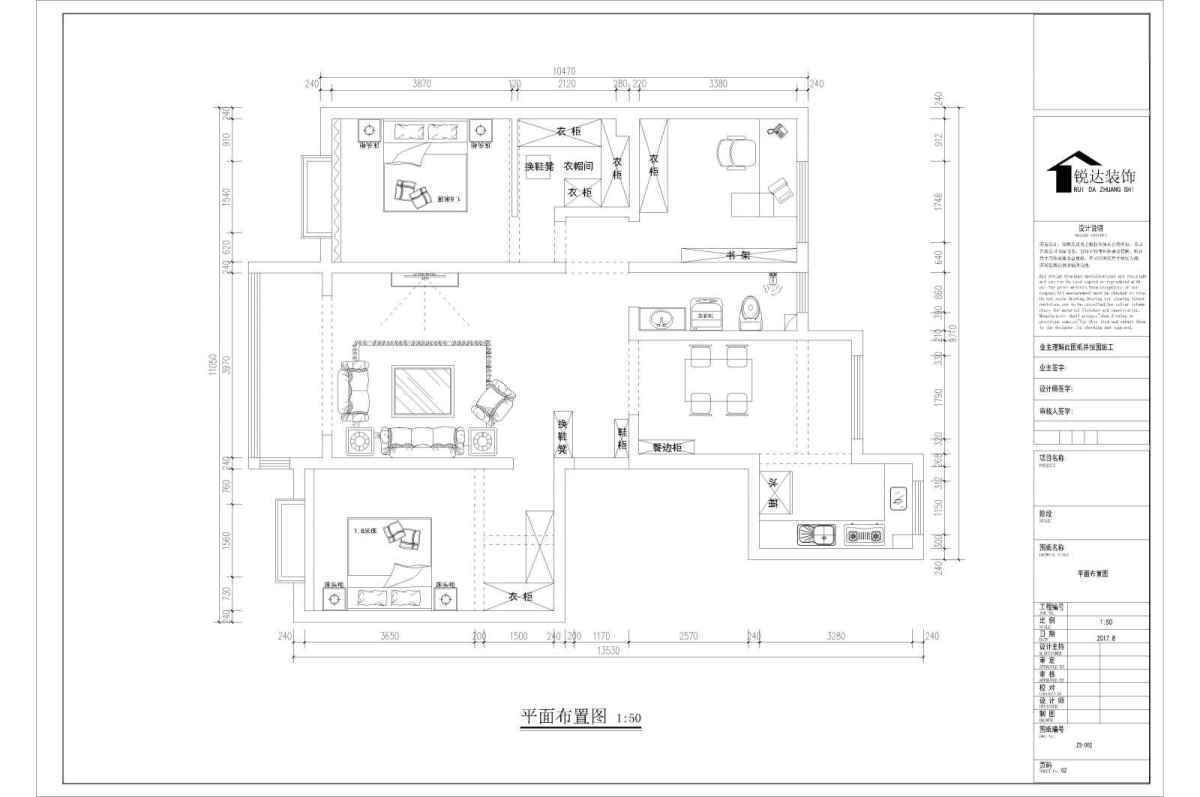
施工地:神舟明珠

户型:三室两厅两卫

风格:简约

设计:锐达装饰


这套138㎡的房子设计的是简约风装修,没有华而不实的喧闹装饰,留下的只是宁静素雅,整体空间看起来给人感觉特别的淡泊宁静,有一丝空灵的感觉~



玄关一进入仿佛整个身心都放松了下来,非常自然~



客厅总体看起来特别简单素雅,一帐屏风给人朦朦胧胧的美感~



从餐厅看客厅,开放简约式的设计看起来非常的敞亮!




卧室的设计则是有些自然,这样的环境下真的是好像舒舒服服的睡一觉~
B 户型_Camera001_07-25-7A.jpg




欢迎新老顾客的关注{:smile:} !!!!!!!     精品海量效果图等您来看呦{:10_838:} {:10_838:} {:10_838:} {:10_838:} {:10_838:}


公司二维码.jpg
B户型-Model.jpg
B户型-Model.jpg02.jpg
您需要登录后才可以回帖 登录 | 注册

本版积分规则

手机版|

酒泉在线,关注身边事。

陇ICP备15000578号|甘公网安备62090202000001号

GMT+8, 2026-2-20 12:56

快速回复 返回顶部 返回列表