酒泉在线,关注身边事。
手机APP
登录
注册
快捷导航
首页
论坛
JQcom BBS
导读
Guide news
招聘
房产
培训
家政
商讯
车市
民声
专辑
Collection
分类信息
酒泉招聘网
招聘
简历
企业
酒泉房产网
新盘
售房
租房
写字楼
酒泉好店
同城装修
同城到家
同城微信群
搜索
搜索
热搜:
地暖房
电梯房
精装
学区房
出租
出售
招聘
高薪
下河清
金佛寺
自驾游
花城湖
美食
本版
帖子
用户
酒泉在线
»
论坛
›
商业信息
›
商讯集市
›
锐达装饰----------巨龙御园 混搭风!!!!! ...
返回列表
发新帖
锐达装饰----------巨龙御园 混搭风!!!!!
[复制链接]
微信扫一扫 分享朋友圈
已有
5424106
人穿越成功
教程:手机怎么扫描二维码
15709344274
发表于 2017-10-9 10:12:22
|
显示全部楼层
|
阅读模式
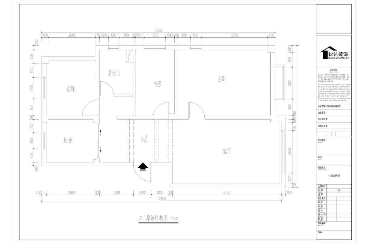
施工地:巨龙御园
户型:三室两厅两卫
风格:混搭
设计:锐达装饰
客厅 经典的胡桃色和现代沙发、简欧电视墙形成混搭式风格,
电视墙
餐厅
原始结构图
平面布置图
联系电话:151 9371 6868 0937-2829850
地址:成林大厦1-15-2(圣富家园)
欢迎新老顾客的关注 !!!!!!! 精品海量效果图等您来看呦
回复
使用道具
举报
置顶一天
禁止回复
标题高亮
风的季节
发表于 2017-10-9 10:21:55
|
显示全部楼层
效果图仅供参考
工人技能水平的高低,装修材料的好坏,后期家具、灯具、窗帘的选择安装摆放都有很大关系
回复
支持
反对
使用道具
举报
返回列表
高级模式
B
Color
Image
Link
Quote
Code
Smilies
您需要登录后才可以回帖
登录
|
注册
本版积分规则
发表回复
回帖后跳转到最后一页
浏览过的版块
房产租售
手机版
|
酒泉在线,关注身边事。
陇ICP备15000578号
|
甘公网安备62090202000001号
GMT+8, 2026-2-20 08:13
快速回复
返回顶部
返回列表