王博——神舟明珠135㎡新中式◤ 古韵新颜 有味清欢 ◢

[复制链接]
三十而立 发表于 2017-10-12 13:59:18 | 显示全部楼层 |阅读模式
施工地址】:神舟明珠

【户型】:三室两厅两卫

【面积】:135㎡

【风格】:新中式

【设计】:王博大宅

【负责人】:汤国海

【施工】:王博大宅装饰设计

【承包方式】:基础装修
(前期规划设计、墙体改造、水电改造、防水、铺砖、木工吊顶造型、墙顶面基层处理、顶面乳胶漆、窗台大理石、辅助成品安装、开关面板牛眼灯灯带安装)


细水流长的生活波澜不惊则是喜
忘怀得失一任自然
宠辱不惊,看庭前花开花落。
去留无意,望天空云卷云舒。
——《小窗幽记》
室中清洁雅素,一涉绚丽,
便如闺阁中,非幽人眠云梦月所宜。
——文震亨《长物志》

▲效果图▲

本设计在形式上颠覆了一贯的繁琐,营造了一种素雅明快的节奏感,给主人打造了一种更适合居住的完美空间,虽然线条都尤为整洁,但是设计师以中式艺术为主,从家具到陈列都力求表达传统设计的神韵,在每一个细节中,运用不同的技法来凸显出中式的古典风;色彩上的黄黄之调,带你穿越传统意境,感受中式文化;材料上的选择也是影响装修的一大环节,山水壁画和实木线条搭配相得益彰,线条的流动感,在无形中增添了空间的美观和舒适度。

O(DPA0M~L7_X156~T1E`STL.png



客厅以新中式米色沙发提供功能性需求,青花瓷色彩的靠垫和黄色靠垫、米色窗帘将时髦的色彩感融入空间,酿造出新雅别趣;中式圈椅、坐凳与边柜呈统一设计,张扬着中式瑰丽,而水墨画愈发水灵。
VPR4R3}4~[NIXF_{$C01Z_8.png



客厅的电视背景墙以清墨山水图景的壁画表现传统的画意天然,双侧壁灯的设计营造出和暖的灯光氛围;整个空间用色上的和淡迎合客户对色彩的喜好,米色新中式沙发在蓝色靠垫的点缀中暖韵悠悠。
UKWV%YECOFAL]SEP4AWA2.png



空间的结构平整,直线感的设计加重了现代风对空间的影响,整洁利落的设计以中式艺术为主题,让简单的空间多了份新中式的意蕴;每个空间以自身的功能更为主,却以中式实木家具串联起空间节奏,让你在此享受温和与暖意,慢慢回味中式设计的对称之美,和谐之意。
](D[DCY064SXA@%MB`A2R}A.png



餐厅结构方正,整体空间利落的线条有条不紊地显出现代凝练,讲究的设计以新颖的形式让空间功能更分明,中式实木家具的贵族范儿在青花瓷靠垫的衬托中与挂画镌刻着清雅。
9I260801Y[0}E)MD3AF)[VN.png



设计想要带给我们的不是符号,也不是模仿,而是为每一位业主量身定做的独属空间。家就是给心灵找一处可靠的港湾,于海天之间,于山水之间,于居室之内,体会天人合一的美好境界。设计师也是秉承着舒适、安谧的主旨,将空间打造为新中式,让你体会现代的整洁,同时也回味传统文化精髓,在旧与新之间体会设计对生活的雕琢,安适自在的生活。



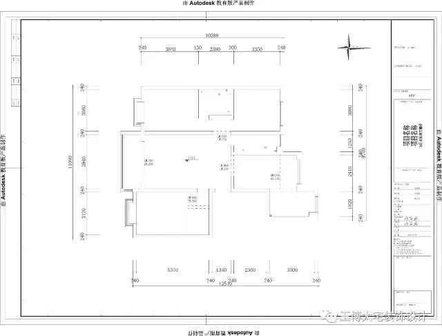
看完效果图,我们来研究一下房子的户型结构。

▲原始结构图▲
640.webp.jpg
神舟明珠135㎡的户型,南北通透,动静分离,客厅与主卧光照充足,采光时间长,餐厅窗户让就餐时间亦可以欣赏窗外美景。


保留了户型的基本布局,两个卫生间,一个主卫一个次卫,使用方便。但对于三口之家或是两口之家,一个卫生间足够了,主卧卫生间也可以做成衣帽间,增加储物功能。

下附本案例设计师名片
QQ图片20170625114529.jpg


此帖会根据进度陆续更新。。。。

谢谢大家耐心的看完帖子,如有疑问或想法请不吝赐教

     24小时咨询电话:18298969418        13519377120      
                           qq:644398178           424080941
                        微信:18298969418      424080941
                        微博:王博_大宅装饰设计


提供海量装修美图及装修达人在线咨询,欢迎关注。







640.webp (1).jpg
您需要登录后才可以回帖 登录 | 注册

本版积分规则

手机版|

酒泉在线,关注身边事。

陇ICP备15000578号|甘公网安备62090202000001号

GMT+8, 2026-2-20 04:01

快速回复 返回顶部 返回列表