王博——神舟明珠135㎡现代简约 ◤简约流畅 沉雅舒适◢

[复制链接]
三十而立 发表于 2017-10-16 17:07:48 | 显示全部楼层 |阅读模式
施工地址】:神舟明珠

【户型】:三室两厅两卫

【面积】:135㎡

【风格】:现代简约

【设计】:王博大宅
【负责人】:王博
【施工】:王博大宅装饰设计

【承包方式】:基础装修
(前期规划设计、墙体改造、水电改造、防水、铺砖、木工吊顶造型、墙顶面基层处理、顶面乳胶漆、窗台大理石、辅助成品安装、开关面板牛眼灯灯带安装)


忙碌的生活使我们早已厌倦了外面的灯红酒绿
而使我们更喜欢看上去宽敞简洁舒适的家以此来消除疲惫
忘却都市的喧嚣
这款以灰色为主打的现代简约装修风格的案例
加上一些黑白色的搭配
就让我们看到了一个简洁舒适
感觉又不失温馨的美家





▲效果图▲
本案设计风格为现代简约,整体色调以灰色系为主,白色为辅,在清清淡淡的情调下,空间呈现出灰阶的宁静。在设计上,多采用壁面嵌入,重组材料的变化、前后关系,在错置编排之下形成一股曼妙的律动生气。 在色彩的空间串联下,汇集生活的情感。
US7XTFFYNWHT{3N%M]%@(59.png


含蓄而柔和的高级灰给人精致沉稳感,搭配水泥灰地板,在家具的营造下,空间呈现出平静、宁和的氛围。客厅的灰色布艺沙发点缀着黄色、蓝色的抱枕,打破空间的沉寂,黑色落地灯点缀出时尚设计感。
3D38L8}0F6N1TVCVI28JNRM.png


设计上主体色彩以灰色为基调,为了避免大面积的灰色带来的暗淡和压抑,设计师加入了合适比例的吊顶造型和高饱和度的布艺色彩,既提升空间的温暖度,又让空间看起来更和谐舒适。
(P{J39%7$Z76%`OR])(3HFH.png



第一眼看这个客厅的感觉,就给人一种高档舒适的感觉,一种暖灰色的空间格调,充满了轻松舒适的氛围感整个空间色调以黑与灰为主,打造出充满男性气质的硬朗空间,也体现出现代都市时尚里的精英气质。材质上运用对比功能,造型运用瓷砖、玻璃等装饰材料,巧妙的延伸空间的纵深感。整体空间在灰黑中呈现出简约、宽阔、通透的时尚摩登感。
BL$~FQGQ@H@EWQ5HY$~(250.png


餐厅延续了客厅的灰色系,墙面做了简单挂画,丰富了视觉效果。餐边柜与黑色餐桌椅的混搭与墙面色调呼应,顶面灯光,营造出精致氛围。
DMJ}Q1BZCDDU~VHQD_I[MOP.png


本案设计为现代简约风格,流畅、简洁的空间基调,给设计师带来极大的创意空间。色彩上,运用白色、灰色、相互搭配,并利用黑色来作为陪衬及点缀,从而突出沉雅中的悠闲;材质上,运用石材、金属、木材等不同的原料,突出表现空间的优雅大气,奢华高贵。在功能的把控上,整体布局除满足居家的基本需求外,更注重生活品质和休闲娱乐的强化处理,从而让功能设计能够兼具美化空间的效果,令简洁与优雅、轻快与柔和成为生活的底色,打造宜居的生活。



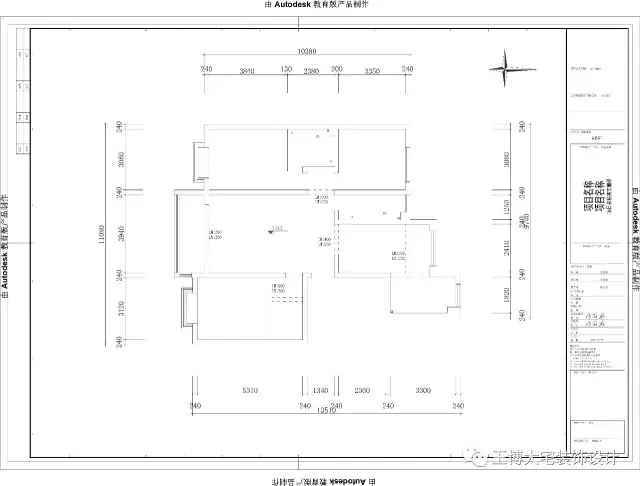
看完效果图,我们来研究一下房子的户型结构。

▲原始结构图▲
神舟明珠135㎡的户型,南北通透,动静分离,客厅与主卧光照充足,采光时间长,餐厅窗户让就餐时间亦可以欣赏窗外美景。
640.webp.jpg

保留了户型的基本布局,两个卫生间,一个主卫一个次卫,使用方便。但对于三口之家或是两口之家,一个卫生间足够了,主卧卫生间也可以做成衣帽间,增加储物功能。
640.webp (1).jpg
下附本案例设计师名片
QQ图片20170625114613.jpg
此帖会根据进度陆续更新。。。。

谢谢大家耐心的看完帖子,如有疑问或想法请不吝赐教

     24小时咨询电话:18298969418        13519377120      
                           qq:644398178           424080941
                        微信:18298969418      424080941
                        微博:王博_大宅装饰设计


提供海量装修美图及装修达人在线咨询,欢迎关注。
640.webp.jpg

IMG_8539.JPG







永亮电脑维修 发表于 2017-10-17 08:32:53 | 显示全部楼层
{:}
回复 支持 反对

使用道具 举报

您需要登录后才可以回帖 登录 | 注册

本版积分规则

手机版|

酒泉在线,关注身边事。

陇ICP备15000578号|甘公网安备62090202000001号

GMT+8, 2026-2-20 05:22

快速回复 返回顶部 返回列表