王博大宅——【作品】神舟明珠151㎡ ◤沉稳雅致 品质家居◢

[复制链接]
三十而立 发表于 2018-3-17 17:37:02 | 显示全部楼层 |阅读模式
【施工地址】:神舟明珠

【户型】:四室两厅两卫

【面积】:151㎡

【设计】:王博大宅——王博

【负责人】:曹兴磊

【施工】:王博大宅装饰设计

【开工时间】:2018年3月11日

【承包方式】:基础装修(前期规划设计、墙体改造、水电改造、防水、铺砖、木工吊顶造型、墙面基层处理、墙面乳胶漆、窗台大理石、辅助成品安装、开关面板牛眼灯灯带安装)

【设计说明】:空间如果脱离了人的需求一切便变得轻薄,设计师正是遵从艺术概念的前提下,尽量发挥和把握空间的功能性,让空间与功能、空间与艺术能够完美地融合,构筑一个舒适的居室。


家是一种归宿,是心停泊的港湾

它可以给任何一个人温暖的感觉

家,绝对不单单指一个能睡觉,能吃饭的处所

曾经有人这样给我解释过家的含义

有爱的地方才叫家

筑家——找我们就对了



▲效果图▲

▲计师以与众不同的方式,让这个居室更显雅致和安谧。设计师强调实用,却以简约流畅的线条,色彩对比来营造跳跃感;金属灯罩、玻璃灯与高纯度用色匹配,却与乖张泼趣的艺术构成了现代生活的个性,看似简单、看似朴素,却雅致而沉稳。
IMG_1231.JPG


▲原始结构图▲
640.webp.jpg
神州明珠151㎡ 的三居室,外加一个储藏室,户型方正合理,四面通风,光线充足,走廊纵深非常的华丽大气。各个功能区空间宽阔。
        从去年八月份接触第一个客户开始,量完尺寸就没有停止过对户型的研究,电视墙的位置放哪合适?冰箱放哪?洗衣机可以放阳台吗?都是客户最常问的问题,根据以上问题我们做了下图三种布局方案以供客户参考,以上问题也会做出详细解答。
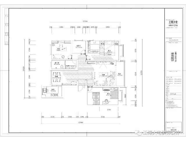
▲平面布局图▲


平面布局方案一:
        保留了户型的基本布局,两个卫生间,一个主卫一个次卫,使用方便。

平一.webp.jpg




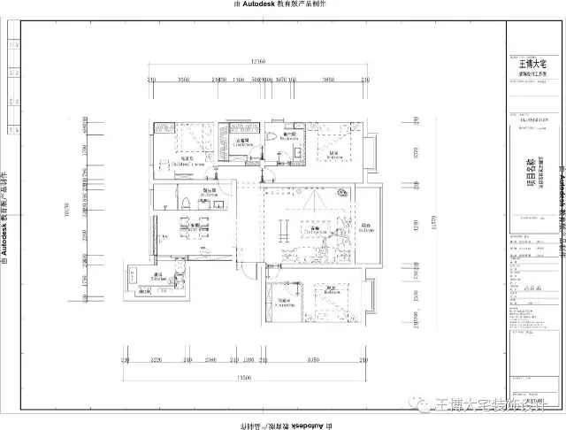
平面布局方案二:
         对于三口之家或是两口之家,一个卫生间足够了,主卧卫生间做成了衣帽间,增加储物功能。

平二.webp.jpg




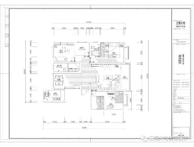
平面布局方案三:
        较前两种方案,第三种方案避免了储物间门直对着入户门同时提高了主卧的舒适度,衣帽间和卫生间串通起来,使用更加的方便,当然这个方案局限性也特别大


平三.webp.jpg




根据业主常问的问题做出如下解答:

        一、电视墙做到主卧那堵墙更加合理,开门看到电视墙比较美观,私密性也比较好,次卧那堵墙长3.8米做沙发墙尺寸足够,如果选择次卧那堵墙做电视墙也可以,需要在处理电视墙的时候做一个对称的造型,把次卧的门做成隐形门。
        二、冰箱可以放在餐厅,用可以活动的材质把分水器包起来,冰箱放在分水器前面,利于冰箱散热,剩余的墙面可以做成酒柜,下附局部布局图

厨一.webp.jpg


冰箱也可以放厨房,需要把厨房那堵墙延伸出来,延伸出来的尺寸正好可以把酒柜嵌进去,更加美观,下附局部布局图。
厨二.webp.jpg


三、洗衣机可以放阳台,在改水电的过程中,提前预留好洗衣机的下水管,而现在人们都用滚筒洗衣机,滚筒洗衣机排水都是强排有压力的,所以排水不成问题,下附阳台放洗衣机的图片。
阳台洗衣机.webp.jpg


▲施工中▲

▲开工
水电现场交底
193752234781356486.jpg

317357696997668600.jpg


459524309800974823.jpg

568345117983736633.jpg



▲标准的水电改造工艺
细节决定成败,王博大宅水电标准施工工地,保温管,底盒与管线链接的锁扣,强弱电金属过桥,没有对比,哪来工地施工质量的优劣之分,我们专注于专业的设计施工!

IMG_1239.JPG

IMG_1240.JPG

IMG_1238.JPG

IMG_1236.JPG

IMG_1235.JPG

IMG_1234.JPG

IMG_1237.JPG

王博大宅设计装饰团队

您的家居设计装修顾问!

王博大宅装饰设计工作室,是一家从事集家居装修设计、商业空间装饰设计、餐饮娱乐装修设计、室内软装设计为一体的装饰设计服务公司。

王博大宅装饰设计团队坚持以客户需求为导向,走有品位、有诚信的设计服务道路。通过多年的装修设计服务实践形成了自己独特的设计理念和成熟的家装服务模式。

我们为客户量身定制,提供从设计方案、标准施工、主材选购、软装搭配、直到业主拎包入住的全程式服务。让每个家庭都展现其独特的个性与灵魂,成为美好舒适的实用空间!

我们的格言是;
           做人.表里如一     做事.尽善尽美

新年伊始,王博大宅装饰在酒泉及周边地区三十户朝上的工地陆续开工中,有喜欢我们装修设计的朋友,要提前联系我们吆!!!


电话: 0937—2888208
           18139771118      18298969418微信同号
           
微博:王博_大宅装饰设计
地址:富康家世界广进财源街9号


微信二维码
IMG_0903.JPG

微信公众号二维码(扫一扫获取更多的装修资讯)
qrcode_for_gh_818d187411ce_344.jpg
57.webp.jpg



 楼主| 三十而立 发表于 2018-4-17 18:00:41 | 显示全部楼层
细节决定成败,王博大宅水电标准施工工地,保温管,底盒与管线链接的锁扣,强弱电金属过桥,没有对比,哪来工地施工质量的优劣之分,我们专注于专业的设计施工!
1.jpg
2.jpg
3.jpg
回复 支持 反对

使用道具 举报

 楼主| 三十而立 发表于 2018-5-16 08:02:03 | 显示全部楼层
回复 支持 反对

使用道具 举报

 楼主| 三十而立 发表于 2018-5-25 17:20:02 | 显示全部楼层
我们为客户量身定制,提供从设计方案、标准施工、主材选购、软装搭配、直到业主拎包入住的全程式服务。让每个家庭都展现其独特的个性与灵魂,成为美好舒适的实用空间!
回复 支持 反对

使用道具 举报

您需要登录后才可以回帖 登录 | 注册

本版积分规则

手机版|

酒泉在线,关注身边事。

陇ICP备15000578号|甘公网安备62090202000001号

GMT+8, 2026-2-18 22:26

快速回复 返回顶部 返回列表