王博大宅——【作品】航天家园120㎡现代简约◤木调简约 舒适现代 ◢

[复制链接]
三十而立 发表于 2018-4-21 19:15:55 | 显示全部楼层 |阅读模式
【施工地址】:航天家园

【户型】:三室两厅一卫一花园

【面积】:120㎡

【风格】:现代简约

【设计】:王博大宅--刘银鹏

【负责人】:刘银鹏

【施工】:王博大宅装饰设计

【承包方式】:基础装修(前期规划设计、墙体改造、水电改造、防水、铺砖、木工吊顶造型、墙顶面基层处理、顶面乳胶漆、窗台大理石、辅助成品安装、开关面板牛眼灯灯带安装)
【设计说明】:本案强调打造精致的空间氛围,让你好似在一个看似纯色却满是变化的空间中生活得温馨、愉悦。



生活,是一件有意思的事情
相比较浓妆艳抹
我更喜欢清淡如水的自然
装修亦如此,遇见一个对的设计师
冥冥中好像有了默契
你了解我的欢喜
我明白你的倔强
就像下雨时雨水滴在青石上发出的“滴答答”声响的真实感
如果你曾静静的聆听过
我想,你会懂





▲效果图▲
装饰材料的组合,令客厅空间视觉丰富;木质多层次使用,释放自然气息;文化石和木地板的组合,电视墙的壁灯,为空间注入几分科技感;多人沙发搭配座椅,在条纹地毯柔软铺展下,为观影闲娱提供舒适性。
1.jpg


本案以现代风格设计,整体施以简洁的手法诠释,将空间化繁为简;而在设计上,则利用材质的多样组合,在朴质与时尚的对碰中,使繁简灵动切换,营造出富有丰富视觉的空间感受;色彩方面平和而沉稳,空间成熟的彰显了屋主雅致的品味;整个复式空间内,更多的是诠释出惬意舒适的休闲。

21.jpg


通透的空间里,设计师布置了厨房、餐厅, 让整个空间得到连通,沟通交流亲密方便;家具的造型则时尚感强;木质隔断和电视墙木地板统一色系,使空间协调。

22.jpg


咖色的沉稳雅致,碰撞清爽的白色,客餐厅空间在色彩中展现出清透不失丰盈的气质;电视墙与餐厅马赛克挂画,通过不同饱和度白色延展出层次,配搭的茶几、边几及餐桌则以木质呼应出朴素温和;装饰画和软装演绎点缀,传递静雅的清新文艺。

23.jpg


柔和自然光线透过窗户映照于室,为空间覆上温暖的舒适感;客厅空间布艺与木质的组合搭配,带来素朴的闲逸情调,而这份拙朴延展至餐厅;木质餐桌椅与入户门材质呼应客厅几类,使自然感充盈整个空间;厨房相连的走廊墙面被打造成存储区,增加了空间实用性。

24.jpg


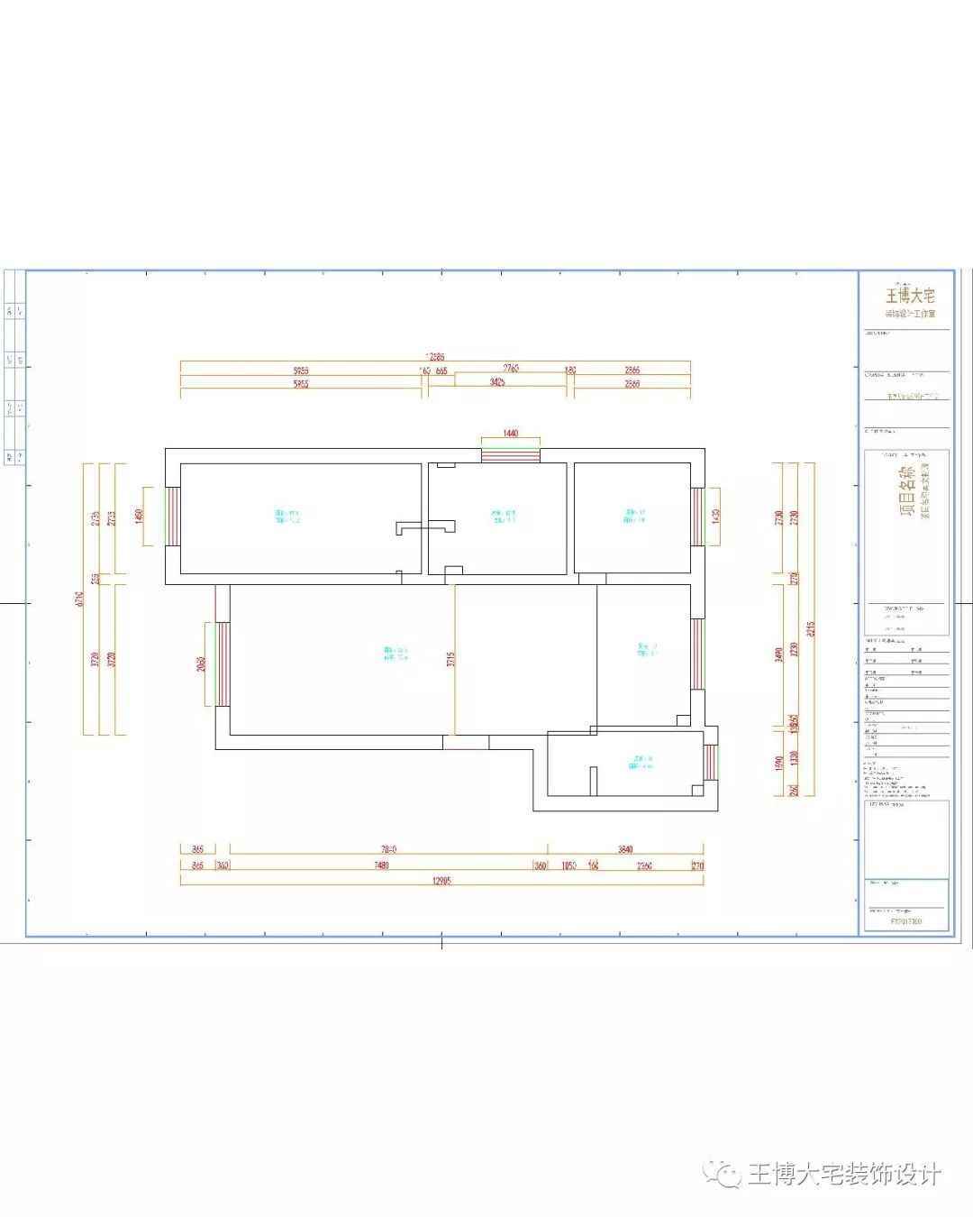
看完效果图,想必大家都对房子的户型结构比较感兴趣,小编就满足一下大家的好奇心。

▲原始结构图▲

25.jpg
航天家园二期30号楼120㎡的户型,带一个入户小花园,三室两厅一卫


▲平面布局图▲
26.jpg


标准工程进行中
水电改造

27.jpg

28.jpg

29.jpg

▲木工吊顶造型

30.jpg

31.jpg

32.jpg

33.jpg
王博大宅设计装饰团队
您的家居设计装修顾问!
王博大宅装饰设计工作室,是一家从事集家居装修设计、商业空间装饰设计、餐饮娱乐装修设计、室内软装设计为一体的装饰设计服务公司。
王博大宅装饰设计团队坚持以客户需求为导向,走有品位、有诚信的设计服务道路。通过多年的装修设计服务实践形成了自己独特的设计理念和成熟的家装服务模式。
我们为客户量身定制,提供从设计方案、标准施工、主材选购、软装搭配、直到业主拎包入住的全程式服务。让每个家庭都展现其独特的个性与灵魂,成为美好舒适的实用空间!
我们的格言是;
           做人.表里如一     做事.尽善尽美
电话: 0937—2888208
           18139771118      18298969418微信同号
微博:王博_大宅装饰设计
地址:富康家世界广进财源街9号
微信二维码
微信二维码.jpg
1118.jpg













本帖最后由 三十而立 于 2018-4-21 19:18 编辑

 楼主| 三十而立 发表于 2018-5-12 08:13:14 | 显示全部楼层
王博大宅——您贴心的装修管家{:smile:}
回复 支持 反对

使用道具 举报

 楼主| 三十而立 发表于 2018-5-25 17:18:02 | 显示全部楼层
我们为客户量身定制,提供从设计方案、标准施工、主材选购、软装搭配、直到业主拎包入住的全程式服务。让每个家庭都展现其独特的个性与灵魂,成为美好舒适的实用空间!
回复 支持 反对

使用道具 举报

您需要登录后才可以回帖 登录 | 注册

本版积分规则

手机版|

酒泉在线,关注身边事。

陇ICP备15000578号|甘公网安备62090202000001号

GMT+8, 2026-2-18 22:29

快速回复 返回顶部 返回列表