王博大宅——【作品】检察院家属院170㎡新中式◤竟然可以这么美◢

  [复制链接]
三十而立 发表于 2018-5-10 15:17:34 | 显示全部楼层 |阅读模式
本帖最后由 三十而立 于 2018-5-10 15:21 编辑

施工地址】:检察院家属院

【户型】:三室两厅两卫

【面积】:170

【项目性质】:旧房改造

【风格】:新中式

【设计】:王博大宅--刘银鹏

【负责】:刘银鹏

【施工】:王博大宅装饰设计


【承包方式】:基础装修(前期规划设计、墙体改造、水电改造、防水、铺砖、木工吊顶造型、墙顶面基层处理、顶面乳胶漆、窗台大理石、辅助成品安装、开关面板牛眼灯灯带安装)

【主要材质】:顺辉120*60电视墙专用超薄大理石、茶镜、金属装饰线条、木质镂空雕花、硬包、实木线条、壁纸、壁画

【设计说明】:本案为新中式风格以中性色调为主,通过实木框来体现新中式的结构艺术,虽然少了传统厚重,却在巧妙地装饰中,表现出一种新中式的轻雅;让空间多文艺和温馨,以不失文化底蕴的设计,让主人能够享受传统中式的古朴、新中式的清雅;尽管以中性色调为主,但是亮色的点缀,无疑彰显着一种不失时尚的中式格调。



身不由己的快生活
让慢成为一种奢侈
或许只有当我们邂逅一座幸福城
安下一个无忧家
才会不由自主放慢脚步
与慢相遇吧

一如新中式风格的家

藏有让人放松身心的魔力
静品慢生活的美好



▲效果图▲
▼客厅
新中式客厅
端庄丰华恢弘大气
一股独特的东方韵味
散发出亦古亦今的层次之美
1.jpg


有点静谧、有点古韵
让你不禁浮想联翩
无法掩饰一个人的精神世界
是心灵和性情的外化之地
2.jpg

高端住宅都会选用新中式风格的设计
而在客厅运用新中式元素
会使整个空间看起来十分大气
显示着一个家庭的品味和待客之道
3.jpg

新中式,
摆脱传统中式的繁琐和沉闷,
将中式元素与现代家居完美融合,
呈现出一种令人舒心的美
4.jpg

▼玄关
清雅、秀逸的空间
使环境和心灵都达到灵与静的唯美境界
迸发出更多可能性的联想

5.jpg

▼餐厅
清雅含蓄
端庄丰华
简朴优雅的设计彰显主人的品味与尊贵。
6.jpg

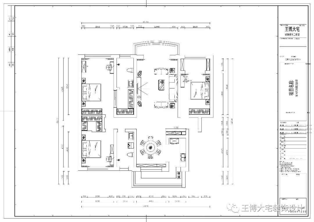
▲原始结构图▲
13.jpg

户型分析
采光: 各空间采光都比较充足,两个卧室一个客厅向阳,光照充足
动线: 动静空间相隔比较独立
通风: 户型整体通风良好
功能性: 户型各空间都很宽敞,主卧生活比较方便,有主卫和衣帽间

14.jpg

王博大宅设计装饰团队
您的家居设计装修顾问!
王博大宅装饰设计工作室,是一家从事集家居装修设计、商业空间装饰设计、餐饮娱乐装修设计、室内软装设计为一体的装饰设计服务公司。
王博大宅装饰设计团队坚持以客户需求为导向,走有品位、有诚信的设计服务道路。通过多年的装修设计服务实践形成了自己独特的设计理念和成熟的家装服务模式。
我们为客户量身定制,提供从设计方案、标准施工、主材选购、软装搭配、直到业主拎包入住的全程式服务。让每个家庭都展现其独特的个性与灵魂,成为美好舒适的实用空间!
我们的格言是;
           做人.表里如一     做事.尽善尽美
电话: 0937—2888208
           18139771118      18298969418微信同号
           微博:王博_大宅装饰设计
地址:富康家世界广进财源街9号
微信二维码
微信二维码.jpg
大宅设计.jpg



















 楼主| 三十而立 发表于 2018-5-11 07:59:45 | 显示全部楼层
好贴必须顶上去{:smile:}
回复 支持 反对

使用道具 举报

您需要登录后才可以回帖 登录 | 注册

本版积分规则

手机版|

酒泉在线,关注身边事。

陇ICP备15000578号|甘公网安备62090202000001号

GMT+8, 2026-2-19 03:04

快速回复 返回顶部 返回列表