|
【施工地址】:航天家园
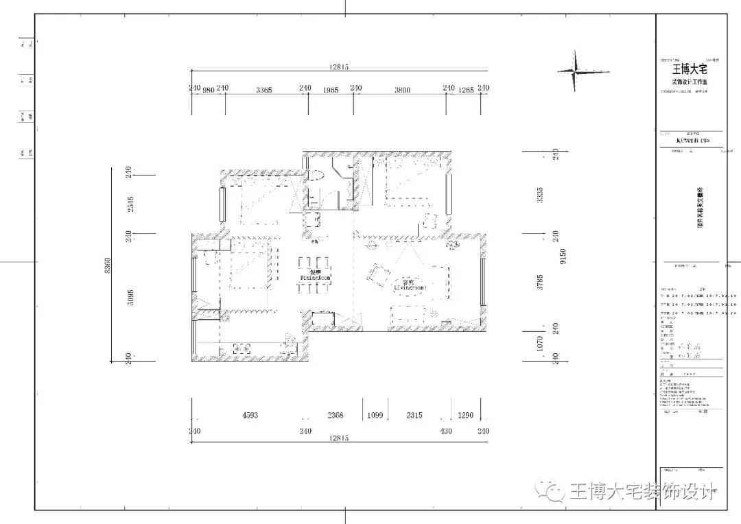
【户型】:三室两厅一卫一厨
【面积】:108㎡
【风格】:现代简约
【设计】:王博大宅——汤国海
【项目经理】:未定
【开工时间】:未定
【施工】:王博大宅装饰设计
【承包方式】:基础装修(前期规划设计、墙体改造、水电改造、防水、铺砖、木工吊顶造型、墙顶面基层处理、顶面乳胶漆、窗台大理石、辅助成品安装、开关面板牛眼灯灯带安装)
【主要材质】:地面米诺石、电视墙布郞灰、黑色铁艺玻璃隔断、白色木色拼接成品定制柜子、米黄色壁纸、黑色金属线条
【设计说明】:本案采用现代风格设计,整个空间设计线条非常简练,显得简约大方;由于屋主偏爱木质,空间多以温润平和的自然材质营造,将原生态的恬淡宁静带入室内,呈现出惬意安然;注重实用功能,大量存储空间的设计,满足了屋主对于收纳置物的需求;舒适与功能的兼具,让空间拙朴素简的,突显出清雅安逸的自然闲趣。
// 大房子谁都想买,但买不起啊! //
这是买房的年轻人最大的困扰,
房价飞涨,我能有什么办法, 还是现实点买个小户型吧。
但再小的房子也是自己的家, 以后要住几十年的, 一定要装成喜欢的样子才行。 于是去细心了解了家居都有哪些风格, 这个背景墙好看,哎呀, 波西米亚风的地毯怎么也这么好看, 地中海的拱门也好好看,都想搬进自己家怎么办。
好看的不一定是适合的, 想要小户型装修得让人眼前一亮又不压抑, 这样混搭可不行,简约风格才是最佳选择。
今天就跟着王博大宅一起欣赏现代简约吧。
  
▲效果图▲
▼客厅
住宅应彰显出居住者的个性、品味和生活方式。 我认为理想的家居环境也应能散发出正能量, 突出居住者在其中的体验感和舒适度。
井然有序的空间,注入鲜明的色彩搭配, 形成一种视觉“冲击力”, 让人心情倍感放松。 在纯度较高的空间里, 艳丽明黄色的点缀,柔和温暖, 提升了空间的饱和度。
日子就像打开一颗咸鸭蛋, 外层的蛋白只是铺垫, 内里的蛋黄才是爆点。 设计如是,一层层的勾勒为的是最后的完美呈现。 有人说,简是一种生活方式, 是那种把日子熬成一杯白开水的过程, 从繁杂的工作中缓慢脱离出来, 连色彩都跳出了框架, 空间自然就纯粹了。
▼餐厅 “简单而有品位”,是对现代简约最好的总结, 简单是没有多余的饰品和复杂的造型, 品味是前卫、不受拘束, 那怎么才能达到这种效果呢? 也没那么难,抓住几个要点就好。
换个角度看餐厅, 每个人都有自己心中向往的童话, 却偏被忙碌的生活沾染了世俗的气息。 停下疾走的脚步, 给简单与纯粹留一些时间, 必能如夏花一般, 让单调的日子激起一丝涟漪, 给人生多一些期许。
▲原始结构图▲
保留了户型的基本布局
户型分析
采光: 各空间采光都比较充足
动线: 动静空间相隔比较独立
通风: 户型整体通风良好
功能性: 户型各空间都很宽敞
王博大宅设计装饰团队
您的家居设计装修顾问!
王博大宅装饰设计工作室,是一家从事集家居装修设计、商业空间装饰设计、餐饮娱乐装修设计、室内软装设计为一体的装饰设计服务公司。
王博大宅装饰设计团队坚持以客户需求为导向,走有品位、有诚信的设计服务道路。通过多年的装修设计服务实践形成了自己独特的设计理念和成熟的家装服务模式。
我们为客户量身定制,提供从设计方案、标准施工、主材选购、软装搭配、直到业主拎包入住的全程式服务。让每个家庭都展现其独特的个性与灵魂,成为美好舒适的实用空间!
我们的格言是; 做人.表里如一 做事.尽善尽美
电话: 0937—2888208 18139771118 18298969418微信同号 微博:王博_大宅装饰设计 地址:富康家世界广进财源街9号
微信二维码
|