王博大宅——【作品】神舟明珠151㎡新中式◤方寸之间 皆是优雅◢

[复制链接]
三十而立 发表于 2018-8-5 15:40:26 | 显示全部楼层 |阅读模式
施工地址】:神舟明珠

【户型】:四室两厅一厨两卫

【面积】:151

【风格】:新中式

【设计】:王博大宅--汤国海

【项目经理】:王涛

【施工】:王博大宅装饰设计

【承包方式】:基础装修
(前期规划设计、墙体改造、水电改造、防水、铺砖、木工吊顶造型、墙顶面基层处理、顶面乳胶漆、窗台大理石、辅助成品安装、开关面板牛眼灯灯带安装)

【主要材质】:壁画、实木装饰线条、壁纸、米黄大地砖、硬包

【设计说明】: 一个“美好家”的构建,离不开设计的介入。本案例以新中式风格为主题,比之传统中式风格更加简约精致;设计师通过干净利落的布局,表达出一种包容、大气以及对自由的向往,让家成为业主释放压力和解放心灵的地方。




有人说,中式虽好,但是太老。
所以新中式运用而生,
不拘泥与传统中式元素与格局,
而是在古典的基础上融入现代特色,
两者有机的结合就是今天这个案例的精髓
——新中式。
它更偏重与那些小细节里的中式美,
删繁就简,注重格调与韵味的体现,
将中国的传统美学传达出来。


▲效果图▲

▼客厅
中国人非常讲究待客之道
新中式客厅的品味和气质
体现着中国人深入骨髓的待客礼仪
也传达了一种浓郁的东方式精神境界的追求
1.jpg



中式追求的是内敛、不张扬的格调,
犹如谦谦君子般温润如玉,
于细节之处彰显精致。
2.jpg



空间装饰多采用简洁线条,
搭配质朴儒雅的中式家具,
在低饱和度的深浅色彩渲染下,
空间充满新中式的沉稳大气;
在设计上,设计师利用装饰,制造层次感,
结合现代元素,丰富空间视觉,
使整个空间显得内蕴厚重、雅致十分。
3.jpg


▼门厅
新中式并不是纯粹的中式元素堆砌,
而是在寻求传统韵味与现代审美的相互融合。
典型的中式花纹元素点缀,
以及现代风格里的落地窗设计,
简洁稳重中又增添一丝中式儒雅。
4.jpg


▼餐厅
餐厅空间宜设而设,精在体宜,
在删繁就简的手法下,
空间整体开阔轩敞,透着明快的活力,
也就此减弱了色调低沉的家具所带来的敦厚感,
彰显出新中式雅人深致的温雅气质。
5.jpg



▲原始结构图▲
6.jpg

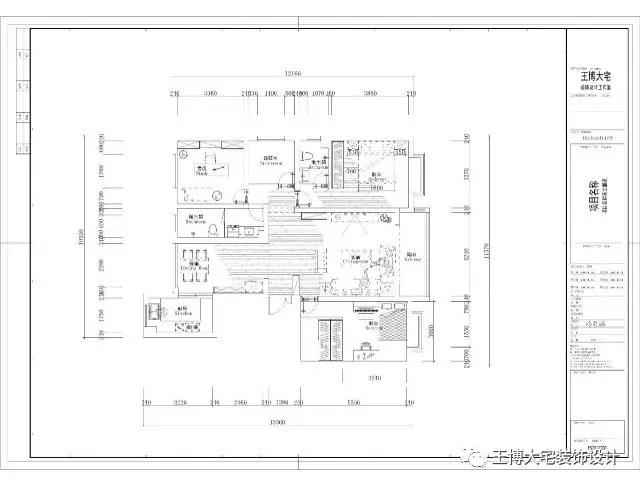
神州明珠151㎡ 的三居室,外加一个储藏室,户型方正合理,四面通风,光线充足,走廊纵深非常的华丽大气。各个功能区空间宽阔。

▲平面布局图▲
7.jpg

▲开工
254696122061911770.jpg
821629647384108745.jpg
195821628108666762.jpg

▲改水电
41375093846832686.jpg
213579545715560361.jpg



王博大宅设计装饰团队

您的家居设计装修顾问!

王博大宅装饰设计工作室,是一家从事集家居装修设计、商业空间装饰设计、餐饮娱乐装修设计、室内软装设计为一体的装饰设计服务公司。

王博大宅装饰设计团队坚持以客户需求为导向,走有品位、有诚信的设计服务道路。通过多年的装修设计服务实践形成了自己独特的设计理念和成熟的家装服务模式。

我们为客户量身定制,提供从设计方案、标准施工、主材选购、软装搭配、直到业主拎包入住的全程式服务。让每个家庭都展现其独特的个性与灵魂,成为美好舒适的实用空间!

我们的格言是;
           做人.表里如一     做事.尽善尽美

电话: 0937—2888208
           18139771118      18298969418微信同号
           
微博:王博_大宅装饰设计
地址:富康家世界广进财源街9号


微信二维码
微信二维码.jpg
大宅设计.jpg





您需要登录后才可以回帖 登录 | 注册

本版积分规则

手机版|

酒泉在线,关注身边事。

陇ICP备15000578号|甘公网安备62090202000001号

GMT+8, 2026-2-18 18:29

快速回复 返回顶部 返回列表