王博大宅——【作品】居雅苑136㎡美式风格◤住在家里 把生活过进心里◢

[复制链接]
三十而立 发表于 2018-9-27 11:15:00 | 显示全部楼层 |阅读模式
施工地址】:居雅苑

【户型】:三室两厅一厨一卫

【面积】:136㎡

【风格】:美式
【设计】:王博大宅——汤国海

【项目经理】:杨洲年

【开工时间】:2018年9月14日

【施工】:王博大宅装饰设计

【承包方式】:基础装修
(前期规划设计、墙体改造、水电改造、防水、铺砖、木工吊顶造型、墙顶面基层处理、顶面乳胶漆、窗台大理石、辅助成品安装、开关面板牛眼灯灯带安装)

【主要材质】:灰色瓷抛砖、白色瓷抛砖、黑白根瓷砖线条、木质镂空隔断、护墙板、咖色壁纸、壁画

【设计说明】:本案是一个规整地三居室,设计师通过对整体空间的规划,为主人打造一个现代的美式空间;色调以米色和驼色为主,力求在温和之余,塑造沉稳。



复古、优雅、朋克、浪漫、轻奢....
大众给予了美式太多的修饰。
然而,家本是无拘无束的场合,
不论何种修饰,
都该透露着温馨的本质。
《人生一串》中说,没了烟火气,人生就是一段孤独的旅行。
历经时代的洗礼,美式早就褪去了繁杂的外壳,
成为这都市中不羁的存在。
---关于美式


▲效果图▲

▼客厅

温馨随性、粗犷大气和低调华贵的气息,
满足业主对于个性的渴望,
也是业主生活态度的直接展现。
1.jpg


灰色与白色菱形拼地砖让单调空间"活"起来,
金属茶几也很有味道,
抱枕、饰品、灯具,线条更加简练、自然。
通过各种精致的陈设装饰出客厅的个性,
软装才是决定家居风格的重要因素
2.jpg


在简约的空间线条里,
注入一些不同风格元素,添加不同的颜色,
会营造出一种令人称羡的意景,
让舒适变成家的一大亮点。
3.jpg


随性自在的美式风格,
舒适又不失时尚特质,
提升居家空间温馨感受,
为年轻一代开启轻松自在的生活模式。
4.jpg


餐厅选用深色与浅色拼接的木质餐桌,
与咖色的墙面搭配出安静且沉稳的氛围,
让人倍感温馨;
墙面造型缓解餐厅的深沉氛围,
更填一丝纯雅。
5.jpg

▲原始结构图▲
6.jpg

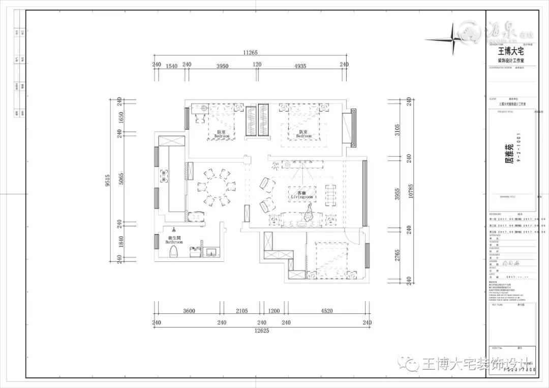
户型分析
采光: 各空间采光都比较充足,两个卧室一个客厅向阳
动线: 动静空间相隔比较独立
通风: 户型整体通风良好
功能性: 户型各空间都很宽敞

▲平面布局图▲
7.jpg


▲标准工程进行中▲

▲开工
8.jpg
9.jpg
10.jpg
11.jpg
12.jpg

▲水电改造
13.jpg
14.jpg
15.jpg
16.jpg
17.jpg



未完待续……


王博大宅设计装饰团队

您的家居设计装修顾问!

王博大宅装饰设计工作室,是一家从事集家居装修设计、商业空间装饰设计、餐饮娱乐装修设计、室内软装设计为一体的装饰设计服务公司。

王博大宅装饰设计团队坚持以客户需求为导向,走有品位、有诚信的设计服务道路。通过多年的装修设计服务实践形成了自己独特的设计理念和成熟的家装服务模式。

我们为客户量身定制,提供从设计方案、标准施工、主材选购、软装搭配、直到业主拎包入住的全程式服务。让每个家庭都展现其独特的个性与灵魂,成为美好舒适的实用空间!

我们的格言是;
           做人.表里如一     做事.尽善尽美

电话: 0937—2888208
           18139771118      18298969418微信同号
           
微博:王博_大宅装饰设计
地址:富康家世界广进财源街9号


微信二维码

微信二维码.jpg
名片.jpg





您需要登录后才可以回帖 登录 | 注册

本版积分规则

手机版|

酒泉在线,关注身边事。

陇ICP备15000578号|甘公网安备62090202000001号

GMT+8, 2026-2-18 14:22

快速回复 返回顶部 返回列表