王博大宅——【作品】中天城苑138㎡现代简约◤似藏于楼宇,却只属于你的迷城◢

[复制链接]
三十而立 发表于 2019-7-17 18:35:17 | 显示全部楼层 |阅读模式
本帖最后由 三十而立 于 2019-7-17 18:36 编辑

施工地址】:中天城苑

【户型】:三室两厅一厨一卫

【面积】:138㎡

【风格】:现代简约
【设计】:曹兴磊

【项目经理】:王涛

【开工时间】:2019年5月18日

【施工】:王博大宅装饰设计

【承包方式】:基础装修
(前期规划设计、墙体改造、水电改造、防水、铺砖、木工吊顶造型、墙顶面基层处理、顶面乳胶漆、窗台大理石、辅助成品安装、开关面板牛眼灯灯带安装)

【主要材质】:鱼肚白大理石、卡兰诺大地砖、浅啡网瓷砖线条、卡索啡瓷砖线条、咖色壁纸、铝框玻璃门成品定制柜


【设计说明】:本案为现代简约风格,以咖、白、灰为主基色,所选用的原木、天然石材等自然材质,搭配大地色系的空间色调与之呼应,颇显温润细腻。


追求自然、纯真的生活方式、
人性的回归、
一切都是那么自然、
和睦而简单!

与自己的内心对话、
认真思考、探索、描绘出的轮廓、
宛如一屡流动的淡墨、
轻轻流淌......

精致含蓄、奔放热烈



预约设计师
预约设计师.jpg1.jpg
长按识别二维码,尊享私人订制


▲效果图▲
客厅
Living Room
高级的色调 偌大宽敞的空间
开启了日常交流
电视墙采用大理石及装饰柜
透视框线,层门渐开,
光影间产生微妙的平衡,
加强视觉焦点,
静谧的氛围延伸至整个公共区域
以简约样貌呈现。
1.jpg

二十几岁的年轻人,
他们想要的家,其实很简单,
既能满足日常需要,又能满足周末聚会的欢乐,
对于风格的把控以时尚简约为好,无需太多藻饰,
享受随性空间的乐趣。
2.jpg

正午时分,
斑驳的阳光渗过林木、大玻璃窗,
在客厅里绽放着,随着时间不短变化,
与空间界面交织在一起,
勾勒出自在和谐、温暖包容的共处时光。
3.jpg

餐厅
Dining Room
对于初来乍到的客人,
这里便是令人惊喜的第一眼,
也决定了对这个家的整体印象。
当你沉浸于人像画的时候,
精致的餐厅空间跃入视线,
4.jpg

▲原始结构图▲
5.jpg
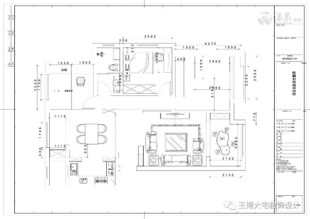
户型分析
采光: 各空间采光都比较充足,有阴台阳台,休憩空间充足
通风: 户型整体通风良好
功能性: 户型各空间都很宽敞
▲平面布局图▲
6.jpg
▲标准工程进行中▲

▲开工
7.jpg
8.jpg
9.jpg
10.jpg

水电改造
11.jpg
12.jpg
13.jpg
14.jpg
15.jpg
16.jpg
17.jpg

木工吊顶
18.jpg
19.jpg
20.jpg
21.jpg
贴砖
贴砖前卫生间做防水
22.jpg
23.jpg
24.jpg
25.jpg
26.jpg

王博大宅材料工艺升级

1.墙地面界面剂
装修第一步:
黄墙固全屋防潮,固沙。
应对泛碱,掉灰墙面。保证后期墙面乳胶漆,壁纸,壁布,硅藻泥永不泛碱返潮。
01.jpg
02.jpg
03.jpg
装修第二步:
绿地(地面加固剂)
全屋防潮,固沙。
04.jpg
05.jpg
2.吊顶材料升级
20.jpg
21.jpg
22.jpg
23.jpg
24.jpg
25.jpg
26.jpg
28.jpg
29.jpg
30.jpg
31.jpg
32.jpg
33.jpg
35.jpg
36.jpg
吊顶轻钢龙骨升级
12.jpg
13.jpg
3.墙面基层处理材料升级
14.jpg
15.jpg
16.jpg



您需要登录后才可以回帖 登录 | 注册

本版积分规则

手机版|

酒泉在线,关注身边事。

陇ICP备15000578号|甘公网安备62090202000001号

GMT+8, 2026-2-18 02:53

快速回复 返回顶部 返回列表